Mengenal Jenis dan Macam-Macam Pondasi "Dalam & Dangkal"
Pengertian Pondasi
Pondasi adalah suatu konstruksi pada bagian dasar struktur/bangunan (sub structure) yang berfungsi meneruskan beban secara merata dari bagian atas struktur/bangunan (upper structure) kelapisan tanah yang berada di bagian bawahnya tanpa mengakibatkan Keruntuhan tanah, dan Penurunan (settlement) tanah/pondasi yang berlebihan.
Pondasi umumnya dibuat menjadi satu kesatuan dasar struktur bangunan yang kuat, pada bagian bawah konstruksi.
Pondasi umumnya dibuat menjadi satu kesatuan dasar struktur bangunan yang kuat, pada bagian bawah konstruksi.
Dalam perencanaan pondasi untuk suatu struktur/bangunan dapat digunakan beberapa macam tipe pondasi. Pemilihan pondasi dapat ditentukan berdasarkan fungsi bangunan atau beban yang nantinya akan dipikul oleh pondasi tersebut. Selain besarnya beban, kondisi/keadaan tanah dimana bangunan tersebut berdiri dan faktor ekonomi harus juga dipertimbangkan.
Keberadaaan pondasi sangat penting dalam kontruksi yang direncanakan, mengingat pondasi merupakan bagian terbawah dari bangunan yang berfungsi mendukung beban bangunan dan meneruskan beban bangunan itu. baik itu beban mati, beban hidup dan beban gempa (ke tanah atau batuan yang berada dibawahnya). Bentuk pondasi tergantung dari macam bangunan yang akan dibangun dan keadaan tanah untuk tempat pondasi yang akan diletakkan, biasanya pondasi berada pada tanah yang keras.
Agar bangunan dapat berdiri dengan stabil dan tidak timbul penurunan yang terlalu besar, maka pondasi bangunan harus mencapai lapisan tanah yang cukup padat. Untuk mengetahui letak/kedalaman lapisan tanah padat dan kapasitas daya dukung tanah yang sesuai standar bangunan pondasi, maka perlu penyelidikan mekanika tanah yang meliputi penyelidikan di lapangan (lokasi rencana bangunan baru) dan penelitian di laboratorium.
1. Pemboran (Drilling)
Pemboran merupakan bagian yang penting dari penyelidikan tanah, dari pemboran dapat diketahui lapisan-lapisan tanah di bawah lokasi rencana bangunan, dari ruang bor (boreholes) dapat diperoleh contoh: tanah yang diperlukan untuk penyelidikan tanah yang selanjutnya dilakukan dilaboratorium Mekanika Tanah.
2. Pengambilan contoh bahan tanah
Pengambilan contoh bahan tanah dilakukan untuk mengetahui contoh tanah tidak terusik dan contoh tanah terusik.
a. Contoh tanah tidak terusik
Contoh tanah tidak terusik adalah contoh tanah yang masih menunjukkan sifat asli (alamiah dari tanah di tempat asalnya, jadi belum mengalami perubahan struktur, kepadatan/ikatan antar butir tanah, kadar air atau susunan kimianya.
Contoh tanah tidak terusik dari tanah kohesif sangat berguna untuk penelitian kekuatan (kuat geser atau kohesi), kompresibilitas dan permeabilitas, tiga sifat teknik yang penting untuk perencanaan pondasi.
b. Contoh tanah terusik
Contoh tanah terusik adalah contoh tanah yang diambil tanpa mempertahankan sifat-sifat asli tanah, biasanya hanya digunakan untuk penelitian/analisa distribusi ukuran butiran, batas atterberg (batas cair dan index plastisitas), klasifikasi tanah dan pengujian pemadatan laboratorium.
3. Pengujian penetrasi
Pengujian penetrasi yang dilaksanakan dapat dibagi menjadi pengujian penetrasi statis dan pengujian penetrasi dinamis.
a. Pengujian penetrasi statis
Pengujian penetrasi statis yang umum dilaksanakan di Indonesia dengan menggunakan alat sondir (Ducth Static Penetrometer). Cara kerjanya dengan ujung alat sondir yang berupa konus ditekan masuk ke dalam tanah, gaya yang digunakan untuk menekan konus sondir ke bawah diukur dengan suatu alat pengukur tekanan (manometer gauge) yang menunjukkan nilai ketahanan konus dalam kg/cm2, nilai tahanan konus sondir yang terbaca pada manometer yang menunjukkan kepadatan relative dari lapisan tanah yang ada.
b. Pengujian penetrasi dinamis
Pengujian penetrasi dinamis banyak dilakukan di Amerika Serikat dan terkenal dengan sebutan SPT (Standard Penetration Test, prinsip cara kerjanya adalah tabung slinder, contoh standar (Standard split spoon sampler) dipukul masuk ke dalam tanah menggunakan alat penumbuk seberat 140 pound (63,5 kg) yang dijatuhkan dari ketinggian 30 inchi (76 cm), dan dihitung dari banyaknya pukulan yang diperlukan untuk menumbuk masuk tabung slinder sedalam 1 foot (30,5 cm)yang ditentukan sebagai nilai N dengan satuan pukulan /kaki (blows per foot)
Pengujian penetrasi statis sesuai digunakan di Indonesia dengan kondisi lapisan tanah pasir/lanau/lempung lunak (soft to medium stiff), dan hasil pengujian penetrasi statis (sondir) biasanya lebih tepat dibandingkan hasil pengujian dinamis SPT.
MACAM-MACAM PONDASI
Pondasi bangunan dapat dibedakan menjadi dua, yaitu pondasi dangkal dan pondasi dalam, tergantung dari letak tanah kerasnya dan perbandingan kedalaman lebar pondasi. Pondasi dangkal kedalamannya kurang atau sama dengan lebar pondasi (D≤B) dan dapat digunakan jika lapisan tanah kerasnya terletak dekat dengan permukaan tanah. Sedangkan pondasi dalam digunakan jika lapisan tanah keras berada jauh dari permukaan tanah.
Pondasi dapat digolongkan berdasarkan kemungkinan besar beban yang harus dipikul oleh pondasi.
Jenis & Macam-Macam Pondasi
1. Pondasi dangkal
Pondasi dangkal adalah pondasi yang mendukung beban secara langsung. Pondasi dangkal disebut pondasi langsung , pondasi ini digunakan apabila lapisan tanah pada dasar pondasi yang mampu mendukung beban yang dilimpahkan terletak tidak dalam (berada relative dekat dengan permukaan tanah.Saat ini masih sulit bagi kita untuk mendefinisikan pondasi dangkal, karena sangat tergantung dari masing-masing ahli tanahyang menginterpretasikan. Sebagai contoh Tarzaghi mendefinisikan pondasi dangkal sebagai berikut:
- Apabila kedalam fondasi lebih kecil atau sama dengan lebar fondasi, maka fondasi tersebut bisa dikatakan sebagai fondasi dangkal.
- Anggapan bahwa penyebaran tegangan pada struktur pondasi ke tanah dibawahnya berupa lapisan penyangga (bearing stratum) lebih kecil atau sama dengan lebar pondasi.
a. Kapasitas daya dukung tanah (bearing capacity)
- Jenis pondasi dangkal : Meliputi bentuk pondasi, dimensi, dan kedalaman pondasi.
- Sifat-sifat tanah Yaitu sifat-sifat tanah dimana pondasi dangkal diletakkan dan terutama yang erat kaitannya dengan karakteristik indeks dan karakteristik struktur tanah yang meliputi antara lain :
· γ (berat volume tanah)
· c (cohesi tanah)
· ϕ (sudut geser tanah)
b. penurunan (settlement)
- Penurunan seketika (immediate settlement) yaitu penurunan diakibatkan oleh elastisitas tanah
- Penurunan konsolidasi (consolidation settlement) yaitu penurunan yang diakibatkan peristiwa konsolidasi atau peristiwa keluarnya air dari ruang pori partikel tanah.
Jika dilihat dari bentuk penurunannya maka penurunan bisa dibedakan menjadi dua yaitu :
- Penurunan seragam (uniform), penurunan yang terjadi Stot<
- Penurunan tak seragam (non uniform) Stot < Syrt.ᵟs <ᵟs yrt
Dengan melihat kriteria stabilitas dari suatu pondasi dangkal maka didalam perancangan dua kriteria tersebut perlu diperhatikan dan harus selalu memenuhi persyaratan selain memenuhi persyaratan terhadap factor keamanan.
Secara singkat dapat disimpulkan bahwa pondasi dangkal harus memenuhi keadaan-keadaan sebagai berikut:
1. Kapasitas daya dukung batas Qult > tegangan kontak yang diakibatkan oleh beban luar
2. Penurunan pondasi yang terjadi < penurunan disyaratkan
3. Struktur secara keseluruhan harus stabil dalam arah vertikal, horinzal dan terhadap guling
Jenis-Jenis Pondasi Dangkal
a. Pondasi telapak
Pondasi yang berdiri sendiri dalam mendukung kolom atau pondasi yang mendukung bangunan secara langsung pada tanah bilamana terdapat lapisan tanah yang cukup tebal dengan kualitas baik yang mampu mendukung bangunan itu pada permukaan tanah atau sedikit dibwah permukaan tanah.
Untuk memudahkan hitungan konstruksi fondasi telapak, maka digunakan beberapa anggapan praktis bahwa :
- Plat pondasi adalah kaku sempurna, jadi tidak akan melengkung karena beban terpusat, dan tetap merupakan bidang lurus.
- Desakan yang terjadi pada tanah dibawah dasar pondasi berbanding langsung dengan penurunan pondasi.
- Karena tanah tidak dapat menahan tegangan tarik, maka bila dari hitungan secara teoritis akan timbul tegangan tarik tersebut harus diabaikan.
![]() |
| Gambar Detail Pondasi Telapak |
Pondasi telapak umumnya berbentuk bujur sangkar atau persegi panjang. Pada pondasi telapak yang mendukung beban sentris tanpa momen, bentuk pondasi dapat digunakan bentuk bujur sangkar, bila beban sentris yang bekerja berupa gaya tekan V, maka plat pondasi akan memberikan desakan pada tanah sebesar:
Bila beban gaya V tidak sentris (eksentris), keadaan ini sama dengan V sentris dengan momen M = V.e, dengan e adalah eksentrisitas dari gaya vertikal V.
P = ton/m2
Dimana A adalah luas pondasi
ρmin ≥ 0 adalah syarat agar pada dasar pondasi hanya terjadi tegangan desak saja, sebab tanah tidak dapat menahan tegangan tarik.
B. Pondasi menerus
Pondasi yang digunakan untuk mendukung sederetan kolom yang berjarak dekat sehingga bila dipakai pondasi telapak sisinya akan terhimpit satu sama lainnya.
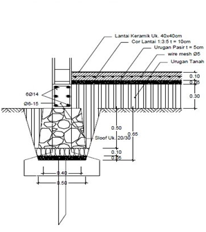
Pondasi menerus biasa digunakan untuk pondasi dinding, terutama digunakan pada bengunan/rumah tinggal tidak bertingkat, seluruh beban atap/beban bangunan umumnya dipikul oleh dinding dan diteruskan ketanah melalui pondasi menerus sepanjang dinding bangunan.
Untuk bangunan kecil di atas tanah baik, pondasi menerus setengah bata cukup diletakkan pada kedalaman 60-80 cm di bawah muka tanah, bila dinding satu bata, kedalaman pondasi biasanya 80- 100 cm, sedangkan konstruksi pondasi cukup dari pasangan batu, lebar dasar pondasi umumnya dibuat tidak kurang dari dua setengah kali tebal tembok. Diatas pondasi pasangan batu perlu dipasang balok beton bertulang yang berfungsi sebagai balok pengikat dan juga dapat meratakan beban dinding.
Pondasi yang digunakan untuk mendukung bangunan yang terletak pada tanah lunak atau digunakan bila susunan kolom-kolom jaraknya sedemikan dekat disemua arahnya, sehingga menggunakan pondasi telapak, sisinya berhimpit satu sama lainnya.
![]() |
| Gambar Detail Pondasi Menerus |
C. Pondasi rakit (raft foundation)
Pondasi yang digunakan untuk mendukung bangunan yang terletak pada tanah lunak atau digunakan bila susunan kolom-kolom jaraknya sedemikan dekat disemua arahnya, sehingga menggunakan pondasi telapak, sisinya berhimpit satu sama lainnya.
![]() |
| Foto Pondasi Rakit |
1. Pondasi Dalam
Pondasi dalam adalah pondasi meneruskan beban bangunan ke tanah keras atau batu yang terletak jauh dari permukaan.
Jenis-Jenis Pondasi Dalam
a. Pondasi sumuran
Pondasi sumuran merupakan pondasi peralihan antara pondasi dangkal dan pondasi tiang, digunakan bila tanah dasar yang kuat terletak pada kedalaman yang relative dalam, dimana pondasi sumuran nilai kedalaman (DF) dibagi lebar (B) lebih kecil atau sama dengan 4, sedangkan pondasi dangkal Df/B≤1.
![]() |
| Gambar & Foto Pondasi Sumuran |
b. Pondasi Tiang
Pondasi tiang digunakan bila tanah pondasi pada kedalaman yang normal tidak mampu mendukung bebannya dan tanah kerasnya terletak pada kedalaman yang sangat dalam. Pada pondasi tiang umumnya berdiameter lebih kecil dan lebih panjang dibanding dengan pondasi sumuran.
Dalam penggunaannya pondasi tiang bisa dipakai sebagai pendukung struktur yang didirikan di darat maupun di air tetapi mungkin bentuk tiangnya yang berbeda.
![]() |
| Gambar Detail Pondasi Tiang |
Pondasi dalam seringkali di identikkan sebagai pondasi tiang yaitu suatu struktur pondasi yang mampu menahan gaya orthogonal kesumbu tiang dengan menyerap lenturan. Pondai tiang dibuat menjadi satu kesatuan monolit dengan menyatukan pangkal tiang yang terdapat dibawah konstruksi dengan tumpuan pondasi.
Dalam penggunaaanya pondasi tiang bisa dipakai sebagai pendukung struktur yang didirikan di darat maupun di air tetapi mungkin bentuk tiangnya yang yang berbeda.
1. Bangunan di darat
Biasanya tiang bore (bore & cast in situ piles) merupakan tiang ekonomis dan dapat dilaksanakan dengan diameter tiang yang cukup besar sehingga bisa menahan beban struktur atas ( upper structure) yang besar. Untuk daerah perkotaan jenis tiang ini baik digunakan karena bisa mengurangi heave, kebisingan dan getaran yang terjadi.
Sedangkan untuk upper structure yang ringan sampai berat bisa digunakan driven dan cast situ piles karena bisa lebih ekonomis dibandingkan tiang baja maupun beton.Untuk beban upper structure yang ringan, tiang kayu cukup digunakan.
2. Untuk bangunan di atas air
Penggunaan baja atau profil H atau pipa lebih baik digunakan dari pada beton.Tetapi penggunaan tiang baja harus diperhatikan PH air yang tempat tiang diletakkan. Untuk air yang memiliki PH < 4 atau PH > 9 tiang harus diberi coating.
Sedangkan untuk daerah bergelombang besar harus digunakan pipa yang berdiameter besar agar sekaligus berfungsi sebagai pemecah gelombang.
Jenis pondasi tiang begitu banyak dan bisa diklasifikasikan berdasarkan beberapa kelompok baik menurut perpindahannya maupun menurut teknik pemasangannya.
Sedangkan untuk daerah bergelombang besar harus digunakan pipa yang berdiameter besar agar sekaligus berfungsi sebagai pemecah gelombang.
Jenis pondasi tiang begitu banyak dan bisa diklasifikasikan berdasarkan beberapa kelompok baik menurut perpindahannya maupun menurut teknik pemasangannya.
a. Klasifikasi pondasi tiang menurut perpindahan
1. Tiang-tiang perpindahan (tiang-tiang pancang) displacemen/piles/driven types)
- Kayu, berpenampang bundar dan segi empat dengan sambungan atau menerus (timber pile)
- Tiang beton (precast concrete piles) berpenampang bulat
- Pipa baja (stell tube) dipancang dengan ujung tertutup
- Pipa baja dengan penampang segi empat (stell box) dipancang dengan ujung tertutup.
- Pipa baja ujungnya membesar atau mengecil (fluted & tapered steel tube)
- Pipa baja dengan ujung tertutup dimasukkan dengan cara ditekan (jacked down stell tube with close end)
- Pipa beton dimasukkan dengan cara ditekan ( jacked down solid concrete cylinder)
2. Tiang-tiang perpindahan (tipe pancang dan dicor ditempat/ displacemen piles/ driven & cast in situ type)
- Pipa baja dipancang setelah diisi atau dicor beton, pipa ditarik (stell tube driven & with drawn after palcing concrete)
- Tiang pracetak beton yang diisi dengan beton (precast concrete shell filled with concrete)
- Pipa baja berdinding tipis dpancang kemudian diisi beton
3. Small displacement piles
- Tiang pracetak beton, penampang pipa dipancang dengan penampang tiang terbuka atau salib
- Tiang pracetak beton, penampang bulat dipancang dengan penampang terbuka atau disalib
- Tiang profil baja H
- Tiang baja penampang bulat/pipa, dipancang dengan ujung terbuka dan tanah dapat dibuang kalau diperlukan
- Tiang baja berpenampang kotak, dipancang dengan ujung terbuka dan tanah dapat dibuang kalau diperlukan
- Tanah ulir
- Selinder ulir
4. Tiang tanpa perpindahan (non displacement piles)
Dilaksanakan dengan mengeluarkan tanah dengan proses pemboroan, kemudian tiang dibuat dengan meletakkan beton atau massive pada lobang bor.
- Betonan yang dituangkan pada bor yang dibor dengan bor putar
- Pipa-pipa yang diletakkan pada bor seperti butir satu dan diisi dengan betonan sepanjang diperlukan
- Unit-unit tiang pracetak beton diletakkan pada lubang bor
- Tiang baja diletakkan pada lubang bor
- Tiang pipa diletakkan pada lubang bor
b. Klasifikasi tiang berdasarkan teknik pemasangan
Cara pemasangan tiang :
T. pracetak
- Penumbukan
- Penggetaran
- Penanaman
T. cor ditempat dengan mesin
- Penetrasi Alas
- Berlawanan penggalian
Penulis: Cutmeri Mastura





Tidak ada komentar:
Posting Komentar
Saran & Kritik yg Membangun... OK!